大規模リフォームLarge Scale Reform Renovation
もてなしとくつろぎの和空間へ
- バリアフリー
- 断熱工事
- 窓断熱
- 耐震補強
- オール電化
- 省エネリフォーム
DATA
- 地域
- 松江市
- 築年数
- 35年
- 構造
- 木造2階建
- 家族構成
- 大人2人
- 工期
- 80日
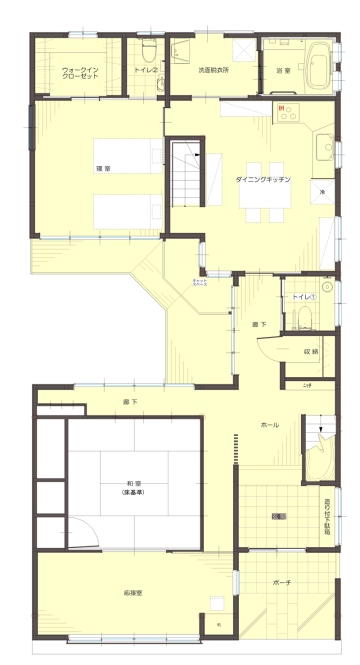
リフォームの希望
■玄関と道路が近いので、雨避けスペースがほしい。
■室内の通路や出入り口が狭いので広くしたい。
■中庭の手入れが大変なので、管理しやすくして欲しい。
■寝室にトイレをつけたい。
リフォームのポイント
■玄関スペースを道路から引っ込めて、安心して外に出れるように。
■来客が多いと伺っていたので、「おもてし」の玄関・ホールに。
■通路巾や入口開口巾など、余裕をもったサイズでご提案
■どこからでも眺めれる中庭になるようプラン。
トイレ
来客用トイレ 奥さまこだわりの焼物の手洗いボールに合わせてトイレ空間をコーディネート。 見た目の印象もがらりと変わり、機能性も備えた、おもてなしトイレの完成。 安心して使っていただけるよう、手すりやカウンターも設置。
キッチン
お二人でお使いになるキッチンは、奥さまのキッチンでの動線を、なるべく短縮することを考えた。 A型キッチンはとてもコンパクトな家事動線となる。(※現在は販売されておりません)食器棚や家電・冷蔵庫も1~2歩で届く距離に配置した。天井には飾りの集成梁を入れ、アクセントに!
バス洗面
とても寒く感じておられた浴室は、ユニットバスを採用し、また、部屋から直接出入りできるよう配置。 ヒートショックの軽減と、家事動線をよくした。 浴室には暖房をつけて、暖かくできるので、もう寒くありません。
お客様の声
以前の家はすき間風があって、薄暗く昼間でも電気をつけないといけなかったんですが、リモデルして明るく過ごしやすくなりました。寝室から中庭が見えるので、朝起きてウッドデッキに椅子を出してくつろぐのが日課になったんですよ。トイレやお風呂なども広くなって、百歳になった父も使いやすいと喜んでいます。新しい家になって、子や孫や、たくさんの人が賑わう家になってよかったなと、とにかく満足しています。
担当スタッフのコメント
リフォーム前は、移動やトイレが遠いなどさまざまな問題がありました。通路はもちろん、入口も全てバリアフリーになりお二人が安全に暮らしていけるよう、プラン・施工させていただきました。
安心して、快適に過ごしていただいているようで、とても嬉しいです。
ねこちゃんたちも、新しいおうちに慣れてくれたようで一安心ですね!








