大規模リフォームLarge Scale Reform Renovation
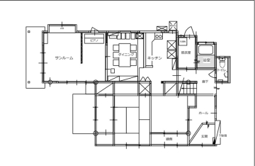
広いサンルームを取り込んでゆったりLDKへ
- バリアフリー
- 断熱工事
- 耐震補強
DATA
- 地域
- 松江市
- 築年数
- 年
- 構造
- 在来木造
- 家族構成
- 大人5人
- 工期
- 2ヶ月
リフォームの希望
老朽化した水回り機器の一新と広いDK+サンルームだった部屋をLDKへしたい。
現在は対面式キッチンだが、配膳など動線が長いので、壁に向くキッチンへ変えたい。
パントリーが欲しい。
リフォームのポイント
現在のお風呂は小さく、ご希望の一坪タイプのシステムバスが入らないため場所を移動。
元お風呂は廊下から使う納戸にして、収納場所を増やした。
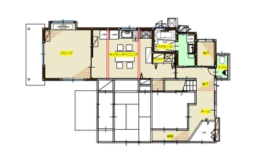
元キッチンのあった場所をバスルームにし、サンルームを取り込んだ残りのスペースをLDKに用途変更した。
リビング
キッチン
玄関
お客様の声
もともとのサンルームはプレイルームとして計画したもので、窓が多く落ち着かない部屋でした。
その後は子ども部屋として使い、今では納戸のようになっていました。
子どもたちが小さい頃は対面式が良かったのですが、ひと歳とった今は動線が長く壁に向いたキッチンにしてもらいました。
そしてゆったりと寛げるリビングになりました。
また、お風呂が広くなり、納戸やパントリーが増えてうれしいです。
トイレの広さは変わりませんが、照明や換気扇、便器の操作などがオートになって使いやすくなりました。
担当スタッフのコメント
何度も増改築を繰り返し、張り出しの多い間取りのお宅でした。サンルームとして設計された部屋は用途変更を繰り返し、最終的に物置に。ここをリビングにしたいというのが一番のご希望でした。
置かれたたくさんの物はリフォームを機に断捨離をされ、こぢんまりとした寛げるリビングになりました。とはいえ、残す物も少なからずあり、元お風呂のスペースが今度は納戸に変わり喜ばれました。
お風呂は一坪サイズのシステムバスがご希望でしたが、外壁が真っ直ぐではなく、屋根の取り合いなどから元キッチンの場所へ配置することに。
一般的にリフォームでは「対面にしたい」という希望が多いのですが、「対面は十分に堪能したので」と優しく微笑む奥様にリフォーム後は「緑の見える窓と、動線の短いキッチンの配置」をご提案させていただきました。






