大規模リフォームLarge Scale Reform Renovation
2人サイズの暮らし
- 天然素材
- バリアフリー
- 断熱工事
- オール電化
DATA
- 地域
- 松江市
- 築年数
- 年
- 構造
- 木造平屋建て
- 家族構成
- 大人2名
- 工期
- 48日
リフォームの希望
時々来る場所だった別荘。2人でずっとここで暮らそうと決めた・・・
・高齢になったこともあり、トイレと浴室は別々にしたい
・本格的に料理も作れるキッチンがほしい!
・収納がほしい(細々したものを入れる場所)
リフォームのポイント
・必要最小限の増築の中に、しっかりと使いやすい間取りを考えた。
(来客とかではなく、自分たちが使いやすい!を一番に、安全や要望を取り入れた間取り。)
・小柄な奥さまのため、吊戸はやめ、手の届く範囲に、水切り棚とオーフ゜ン棚をつけて使いや
すい工夫をした。隠すのではなく、あえてオープンなスタイルにした。
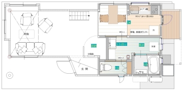
キッチン
キッチンはI型1950。シンク前には横長の窓をつけ、上部には水切り兼用ステンレス棚を設置。食器はもちろん、ボールやざる、調味料などいろんなものの一時置きとしても使えます。小柄な奥様のため、背伸びして届く高さに、木製のオーフ゜ン棚をつけた。
トイレ
ユニットバス・トイレだったため、年齢と共に使いにくくなってきたそうだ。将来のことも考慮して、バス・トイレ別を希望。天井材に使った杉板をトイレの腰板にも使い、ゆったりとしたトイレ空間に仕上げた。
収納
もともとは脱衣だったスペース。リフォーム後は収納スペースに。
外まわり
キッチン横勝手口を出ると、ゴミの一時置き場や、洗濯干し場を兼ねたサービスデッキをつけました。
お客様の声
担当スタッフのコメント
最小限の増築の中に、要望を詰め込みました。2人サイズのコンパクトな家ですが、キッチンや浴室、トイレなど機能は充実し、安心して暮らせる住まいになったと思います。
内部の仕上げはもともとの雰囲気が気に入っていらっしゃったので、それを損なわないよう、杉板など無垢材を使い仕上げました。
こんな2人サイズの住まい、わたしも憧れます。









